Dans une exploitation, une installation ou un départ s’anticipe en amont pour réussir cette étape clé. Au Gaec de l’Autre Rive à Plévenon (22), l’agrandissement du bâtiment, réalisé sur les conseils de Philippe Clech, concepteur bâtiment bovin Eureden, a permis l’installation de Jean-Philippe Ruellan en 2016. Ce jeune agriculteur pourra travailler seul au départ de ses parents, et proposer, demain, un outil attrayant pour un salarié.
Au moment de son installation au sein du Gaec avec ses parents, Jean-Philippe Ruellan souhaite réduire la production de céréales sur l’exploitation, en augmentant son troupeau de vaches ainsi que la production laitière. Ils décident alors d’agrandir le bâtiment bovin et de revoir le système de traite mais le système d’élevage n’est pas remis en question. Ils passent d’une salle de traite 2×5, à deux robots de traite. Les associés conservent la conduite de l’élevage avec du pâturage et litière sur paille.
En zone côtière, l’épandage du lisier est possible mais les associés ont opté pour une filière fumier pour répondre à leur objectif principal : voir leurs animaux dans la paille pour le confort. Matin et soir, le paillage se fait à la main pour ne pas déranger les animaux, limiter la poussière et passer du temps à leur côté et à les observer. « Le robot assure aussi un confort pour les animaux, en plus de l’aide qu’il nous apporte » commente l’éleveur. « Et le suivi personnalisé nous permet de mieux connaître et de mieux soigner nos vaches. »
Un outil évolutif et attrayant
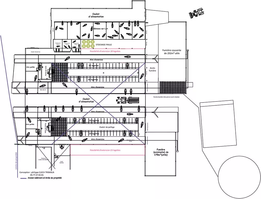
L’agrandissement du bâtiment répond à plusieurs objectifs à court terme et long terme. Dans un premier temps, il devait permettre l’installation de Jean-Philippe Ruellan en augmentant le cheptel. Il doit maintenant lui assurer d’y travailler seul suite au départ de ses parents. La nouvelle stabulation a permis de passer de 45 vaches à une centaine. Aujourd’hui les deux robots ne sont pas saturés, il y a encore une capacité d’augmentation du troupeau. Lors de l’agrandissement du bâtiment, un espace a été créé pour pouvoir ajouter 20 logettes supplémentaires. Cet espace disponible sert actuellement à stocker la paille. Demain, il n’y aura plus qu’à installer les logettes et en ajouter également 23 supplémentaires dans l’autre lot. Le jeune éleveur pense au long terme et toutes les réflexions sur l’aménagement du bâtiment servent le même but : créer un outil de travail simple, attrayant et évolutif. « Je réfléchis à l’automatisation de l’alimentation, je sais qu’il faut que je crée un environnement de travail sain et attractif pour attirer un salarié », commente-t-il.
[caption id= »attachment_45271″ align= »aligncenter » width= »720″]
L’appui d’un concepteur bâtiment
Pour la réalisation des plans du bâtiment Jean-Philippe Ruellan et ses parents ont cherché les conseils auprès des professionnels de leur entourage. À l’époque, c’est leur technicien nutrition, Jean-Paul Soulabaille, qui leur parle du service Conception bâtiment de la coopérative Eureden. C’est alors que Philippe Clech entre en scène et réalise la première visite de l’élevage en 2015. « L’idée qu’ils se faisaient de leur bâtiment était déjà bien avancée et cohérente, ils souhaitaient un bâtiment évolutif et avoir tout sous le même toit » se rappelle le conseiller. Les éleveurs pensent qu’un bâtiment tout en longueur est plus pratique mais la configuration de leur parcelle et de leur bâtiment existant ne le permet pas. Réellement ce n’est pas un problème puisqu’ils parviennent à réaliser un bâtiment pratique, conçu en trois zones. Les vaches laitières sont conduites en deux lots avec une table d’alimentation centrale à laquelle les box ont accès. Puis, la troisième zone est pour les génisses et les veaux.
« Sur le plan, Philippe Clech a prévu un passage au bout du box des génisses, qui me semblait être de la place perdue. Mais j’ai vite compris son utilité et je ne pourrais plus m’en passer » raconte l’agriculteur. Le technicien bâtiment explique que l’objectif de ce passage est de pouvoir traverser tout le bâtiment sur une seule ligne droite. Ce passage a une double fonction finalement puisque Jean-Philippe Ruellan l’utilise même pour déplacer les génisses et il peut ainsi le faire seul. C’est le genre de détail qu’apporte un regard expérimenté et extérieur sur les projets, qui au final sont indispensables pour les éleveurs. « Dans un projet tel que celui du Gaec L’Autre Rive, nous devons prendre en compte le travail et l’organisation des éleveurs, mais aussi le bien-être des animaux, axe stratégique pour Eureden » conclut Philippe Clech.
Les techniciens bâtiments Eureden
- Job Niguinen, dépt. 29 : 06 77 37 51 18
- Philippe Le Carluer, dépt. 22/29 : 06 07 58 39 36
- Gérard Touze, dépt. 22 : 06 77 62 82 20
- Philippe Clech, dépt. 22/35 : 06 77 37 02 81
- Ronan Castrec, dépt. 35/56 : 06 85 03 90 99
- Philippe Poder, dépt. 56 : 06 07 48 85 18
Marine Rozec / Eureden

